Trilocale in vendita

Rho, Via del Gerolo
€ 259.000
Prezzo aggiornato
3 locali 3 locali
106 Mq 106 Mq
1 bagno 1 bagno

Trilocale in vendita

Rho, Via del Gerolo

Descrizione annuncio

San Paolo

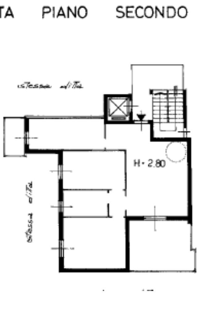
In una piccola palazzina recentemente riqualificata con interventi Superbonus 110%, proponiamo in vendita appartamento al secondo ed ultimo piano servito da ascensore, immerso nel verde e nella tranquillità di una via chiusa al traffico.

L’ingresso, dotato di porta blindata, si apre su un ampio e luminoso soggiorno che affaccia su un bel terrazzino vivibile, perfetto per pranzi e momenti di relax all’aperto.
Alla destra dell’ingresso troviamo la cucina abitabile con balconcino di servizio, ideale per riporre la raccolta differenziata o gli attrezzi per la pulizia.

La zona notte, ben disimpegnata, comprende due camere da letto, di cui una spaziosa matrimoniale, e un bagno finestrato con box doccia.
Gli infissi in PVC effetto legno con doppio vetro garantiscono un ottimo isolamento termoacustico, e sono presenti zanzariere su tutte le finestre.

Tramite una scala a chiocciola interna si raggiunge un comodo disimpegno utilizzato come zona lavanderia, dal quale si accede all’astrico solare, uno spazio aggiuntivo perfetto per godersi le belle giornate o per allestire una zona relax all’aperto.

La palazzina è circondata da curato verde condominiale ed è situata a pochi passi dall’Oratorio San Paolo, dal parco antistante e dalla scuola materna, in una posizione tranquilla ma comoda ai principali servizi.

Completano la proprietà un box singolo, una cantina e ampia possibilità di parcheggio su strada.

Mostra tutto

Nelle vicinanze

Trasporto pubblico Trasporto pubblico
Rho
Rho
1,5 Km
Vanzago-Pogliano
Vanzago-Pogliano
2,3 Km
Via San Carlo, 135 (Rho)
Via San Carlo, 135 (Rho)
300 m
Via San Carlo, 126 (Rho)
Via San Carlo, 126 (Rho)
310 m
stazione di Pregnana Milanese
stazione di Pregnana Milanese
2,7 Km
Ricariche auto elettriche Ricariche auto elettriche
Rho Biblioteca Comunale
660 m
Eneldrive Volta
1,1 Km
Rho Comune
1,2 Km
Rho Parcheggio delle Poste
1,4 Km
Distributore Q8
2,0 Km
Scuole Scuole
Liceo Classico Statale "Clemente Rebora"
460 m
Scuola Secondaria di I grado "F. Bonecchi"
590 m
I.T.I.S. Stanislao Cannizzaro
1,1 Km
Mani di forbici
1,1 Km
Istituto San Michele
1,1 Km
Farmacia Farmacia
Farmacia Comunale #1
990 m
Parafarmacia Salute
1,2 Km
Farmacia San Vittore
1,3 Km
Farmacia Meazza
1,3 Km
Farmacia Chiaudani
1,5 Km
Ospedali Ospedali
Ospedale di Circolo - Rho
970 m
Ospedale "Giuseppe Casati"
2,6 Km
Supermercati Supermercati
Leader Price
340 m
Rho Center
1,1 Km
U2 supermercato
1,1 Km
Esselunga
1,4 Km
Il Gigante
1,6 Km
Negozi Negozi
Il forno delle specialità
900 m
Panificio Fermapan
1,2 Km
HitGallery
1,3 Km
Oltre
1,3 Km
OVS
1,3 Km
Bar Bar
Bar
560 m
Bar Simplon
850 m
Al santuario
1,2 Km
Rock n Roll
1,4 Km
Bar Stazione
1,5 Km
Ristoranti Ristoranti
Exò
1,1 Km
Ristorante Pizzeria Visconti
1,1 Km
Pizzeria Ristorante Cadorna
1,1 Km
Ristoranti
1,2 Km
Voglia di Sushi
1,3 Km
Mostra tutto

Caratteristiche

Rif.:
61137428
Piano:
2 di 2 con ascensore (ultimo Piano)
Box:
1
Balconi:
1
Terrazzi:
2
Camere da letto:
2
Mostra tutto
Prezzo Prezzo
€ 259.000
Prezzo box Prezzo box
€ 20.000
Rata mutuo Rata mutuo
€ 1.227 / mese
Spese annue Spese annue
€ 2.200
Proponi il tuo prezzoProponi il tuo prezzo

Classe Energetica

C
C
C
C
C
C
C
C
C
EP globale non rinnovabile:
185.12 kW h/m² anno
EP globale rinnovabile:
0.35 kW h/m² anno
EP invernale del fabbricato:
EP estiva del fabbricato:
Anno di costruzione:
1980
Riscaldamento:
Centralizzato
Tipo impianto:
A radiatori
Tipo alimentazione:
Metano

Prezzo ridotto di €1 (8%%)

Ti interessa visionare l'immobile?

Fissa un appuntamento  Fissa un appuntamento

Richiedi informazioni

Clicca su Leggi per aprire l'informativa
* Questi campi sono obbligatori

Calcola il tuo mutuo

Semplice e senza impegno
Anticipo

( % )
Mutuo

( % )

pochi semplici passi

inserisci i tuoi dati
Questionario completato
Grazie per aver richiesto un appuntamento senza impegno con un nostro Consulente del Credito e Assicurativo.

Hai inserito correttamente tutti i dati necessari e a breve riceverai una e-mail con un link da convalidare per inviare i tuoi dati.
Affiliato
Nuovi Orizzonti Srl
Via Porta Ronca, 55 20017 Rho (MI)

Il nostro staff


  • Marcella Gianesella
    Responsabile

  • Fabio Clerici
    Affiliato

  • Pamela Ciraci
    Coordinatrice

  • Francesco Moretti
    Collaboratore

  • Rosangela Perrone
    Collaboratrice
Via Porta Ronca, 55 20017 Rho (MI)
Zona: Rho-San Carlo
Mostra su mappa
Orari: Dal Lunedì al Venerdì dalle ore 9.30 alle ore 12.30 e dalle ore 14.30 alle ore 20.00 Sabato dalle ore 9.30 alle ore 12.30 e dalle ore 14.30 alle ore 18.00
Affiliato
Nuovi Orizzonti Srl
Via Porta Ronca, 55 20017 Rho (MI)

2026 Tecnocasa Franchising S.p.A. - P. IVA 08365160152 - Via Monte Bianco 60/A 20089 Rozzano (MI). Ogni agenzia ha un proprio titolare ed è autonoma. Privacy policy | Policy utilizzo | Cookie policy